•¨ŒNO ‚Q‚S‚T
ŽQlF“¯“™ƒ^ƒCƒvŒš’z—\’è
Å@Šñ@‰w
ã_üƒZƒ“ƒ^[ƒv[ƒ‹
•Û@Ø@‹à
‚Q‚R‚O–œ‰~
ê@@@Š
“òèŽs‘å¯ì“c’¬
‰ð@–ñ@ˆø
‚V‚QD‚S‚T–œ‰~
’z@”N@”
‚g‚Q‚PA‚P‚P^––Š®¬
@@@@@@@
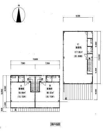
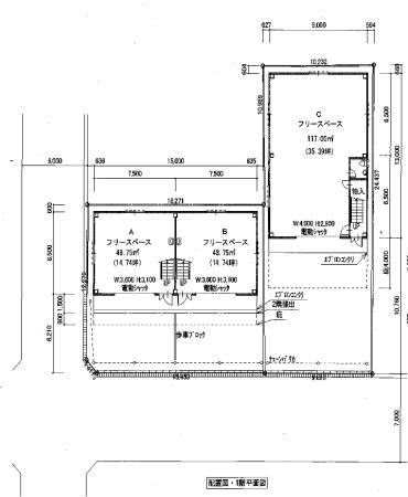
Ží•ÊEŠÔŽæ
Ž––±Š•t‚«‘qŒÉ
‰Æ@@@ ’À
‚Q‚SD‚P‚T–œ‰~
”õ@@@l
‚PŠK‚P‚SD‚V‚Q’Ø{‚QŠK‚P‚WD‚P‚T’Ø{‘O–Ê’“ŽÔ‚R‘ä‰Â”\A•Ê“r‚bƒ^ƒCƒv—L‚è
ƒgƒbƒv
Ž‘—¿¿‹‚Ö„„